

What sort of space do you need?
The Torquay Improvement Association (TIA) Hall is a unique venue that welcomes the opportunity to host your next event or class.
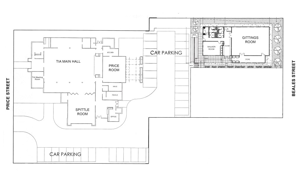
Our venue has four multipurpose spaces and one meeting room available for hire – perfect for classes, presentations, conferences, meetings, lectures, seminars, and workshops. They are spacious and private and can be hired individually or combined for larger functions. The TIA facility can cater to your needs, from business meetings to events, rehearsals, and classes. In addition, the rooms have been used for video film clips, ballet, callisthenics, martial arts, workshops, and business meetings.
Our facilities feature:
– Air-conditioned auditoriums of various sizes
– Public speaking and projector facilities
– Multiple breakout rooms which are suitable for smaller gatherings
– Complete access for people with a disability
– Ample car parking on-site, supplemented with street parking
– Catering options are available with a full domestic kitchen
We are a short stroll to The Esplanade, the beach and Torquay’s cafes, shops, and restaurants.
Choose all of our rooms, or just one. Use our modern audio-visual equipment or bring your own gear. You can also use our furniture and catering kitchen or choose to bring in your preferred function suppliers.
Be sure to read our Terms & Conditions
Choose a room below to explore our options further.
To enquire about your next function or activity complete the form below or email us.
Check room/hall availability here
General hire is $35 per hour (2024-25)
Discounted rates apply for repeat bookings. There are also discounted rates for not-for-profit groups and for groups starting out.
We have characterised our user groups into three categories
- Commercial – running a business for profit or personal gain
- Community – a group or organisation which works for the public benefit which has:
– rules on how the group is organised and run, and
– is not for profit – it is run by volunteers and nobody within the group will profit from the group. Any profits are reinvested in the group - Charity – Not-For-Profit – a group that is registered with the Australian Charity Not For Profit Commission (ACNC)

Main TIA Hall
The Torquay Improvement Association Hall, built in 1940, is a heritage listed building located on Price Street in Torquay. Set amongst other community facilities, it is a great venue for a conference, training day or seminar and larger group activities.
Spittle Room
A bright, multifunctional room with reverse cycle heating and cooling, and a mirror that can be covered and a retractable wall linking it to the main Hall for greater space.


JL Price Room
A bright, multifunctional room with reverse cycle heating and cooling. A servery links it to the fully equipped domestic kitchen.
David Gittings Hall
A bright, large multifunctional room with reverse cycle heating and cooling,


Joe Walker Meeting Room
Our meeting room is a comfortable carpeted space for small groups and meetings. It is a beautiful, light-filled classroom with chairs and tables, suitable for small community groups, events, meetings and activities.
TIA Meeting Room
Small meeting room with easy access from Price Street.

